多介质过滤器
衬胶罐
碳钢罐

当前位置: 首页/九游会首页官网 /除二氧化碳器

';

九游会首页官网

Product Center -


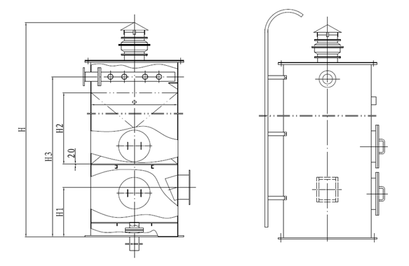
除二氧化碳器

2024-07-09 11:42:29

产品详情

简介、用途:

除碳器用于去除在水软化、除盐过程中,原水经过氢离子交换后,水中的重碳酸盐被破坏而产生大量游离二氧化碳的设备,它设置在阳(H)离子交换器后面。


工作原理:

含有二氧化碳的水进过经喷淋装置喷洒,从上往下流过填料层时,水在填料表面形成一种薄膜的流动,薄膜的形成创造了水中CO2和容器底部进来的空气密切接触的条件,使水中气体与空气中的气体容易自由交换,空气中的CO2含量小,所以水中的CO2很容易就扩散到空气中,水经除碳器后后残留的二氧化碳<5mg/L。


技术参数:

工作压力:常压

工作温度:常温

进水CO2含量:≤330mg/L

 

除二氧化碳器

 

出水CO2含量:≤5mg/L

喷淋密度:60米3/米2.时

流 量:7T/H~510T/H

规 格:Φ400-Φ3600

 

设备照片:


1574065816219916.jpg


除二氧化碳器尺寸规格表: (单位:毫米)

除二氧化碳器 

除二氧化碳器

除二氧化碳器

除二氧化碳器

除二氧化碳器

除二氧化碳器


Baidu
map