当前位置: 首页/九游会首页官网 /水箱
储罐
一体化泵站
水处理过滤器
离子交换器
水处理设备配件
九游会官网在线 亮相第十七届上海国际水展,创新水科技引领绿色未来
九游会官网在线 2025年Q2销售集中营:赋能成长,共启新程
共融共通 共启水处理生态圈| 英诺格林成立20周年供应商大会定义水处理未来式
砥砺二十载,初心如磐;创变启未来,同行致远 | 集团公司英诺格林二十周年庆典圆满举行
融合 、提升、创新、求变-2025年Q1销售集中营圆满落幕
九游会首页官网
Product Center -
水箱
2025-05-15 15:50:22
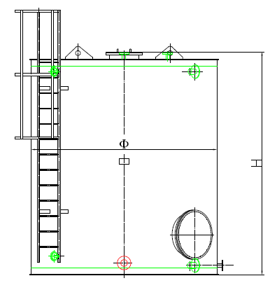
设备简介:
水箱是用于存放各类低腐蚀性介质及水的容器,壳体为钢制结构,内部防腐有:油漆、衬胶、衬塑、环氧树脂、玻璃钢等。
技术参数:
工作压力:常压
工作温度:常温
规格:5-50立方米
结构:方向,圆形,圆形锥体结构等
根据实际需要定制各种类型及规格
水箱尺寸规格表:
酸碱储罐
除氟过滤器
多介质过滤器
玻璃钢罐体
卧式过滤器