当前位置: 首页/九游会首页官网 /全部给水除氧器
储罐
一体化泵站
水处理过滤器
离子交换器
水处理设备配件
九游会官网在线 亮相第十七届上海国际水展,创新水科技引领绿色未来
九游会官网在线 2025年Q2销售集中营:赋能成长,共启新程
共融共通 共启水处理生态圈| 英诺格林成立20周年供应商大会定义水处理未来式
砥砺二十载,初心如磐;创变启未来,同行致远 | 集团公司英诺格林二十周年庆典圆满举行
融合 、提升、创新、求变-2025年Q1销售集中营圆满落幕
九游会首页官网
Product Center -
全部给水除氧器
2024-07-09 11:30:20
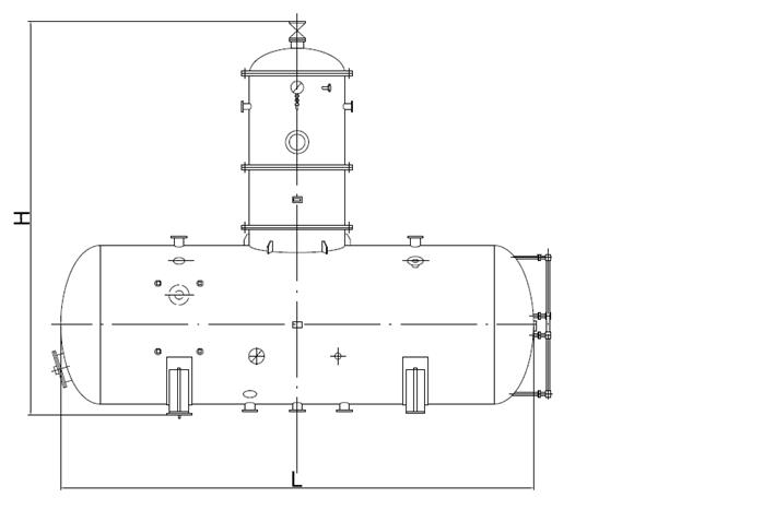
设备简介:
除氧器的主要作用就是用它来除去锅炉给水中氧气及其它气体,保证给水的品质。同时,除氧器本身又是给水回热加热系统中的一个混合式加热器,起了加热给水,提高给水温度的作用。
设备照片:
搅拌箱尺寸规格表:
水箱
酸碱储罐
除氟过滤器
多介质过滤器
玻璃钢罐体
卧式过滤器